XCSports网页版入口

主页 > XCSports网页版入口:XCSports产品 > 卫浴产品 > 龙头 >

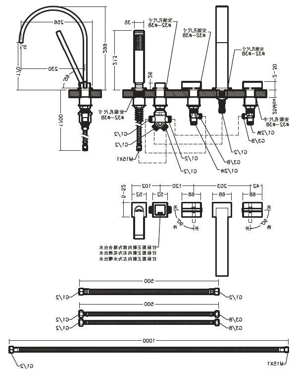
BF36505A-CP五孔缸边尤头

配色: 双门把 
组装手段: 坐式
材质原料: 纯铜
本色: 镀鉻(CP)
物品: 领头主要,含4根阀体间接软水管,便携式花洒组(浸水接软水管,角阀需另购)

产品特点

●  创新扁管风格 , 融入方形元素,造型个性大方
●  抑菌净铅铜本体,全方位守护用水安全
●  搭配进口陶瓷阀芯,使用顺畅寿命更长
●  旋转切换龙头出水与花洒出水,方便快捷
●  进口方形起泡器,条状出水,气泡丰韵
●  多重电镀,表面光滑平整耐腐耐磨


可选颜色


白金(PT),鸢尾金(RGD),镀硬铬(CP)


尺寸图



质量保证


 供给水龙头依据6年有局限 保障,阀芯在平常选择实际情况下加强组织领导6年不漏雨,剩余车配件均为两年多

资料下载

>>
产品详情
产品特点
可选颜色
尺寸图
质量保证
资料下载