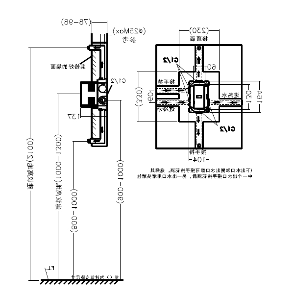
●优质黄铜:阀体采用优质铜材质,确保用水安全健康 ●恒温阀芯:选用Vernet恒温阀芯,38℃恒定温暖,告别冷热不定 ●顶洒出水水路朝上;手持花洒水路朝右侧或下方,用户可选择 ●辨识考量:阀体冷水端配蓝色橡胶圈,热水端配红色橡胶圈,顶洒和手持花洒出水端配黑色橡胶圈,不同颜色提供辨识度,方便安装,避免误操作引起其他不必要的麻烦。盒子上盖带水平仪,安装时可快速调整阀体于合适的位置,避免安装后歪斜等与墙面不平行状况 ●ABS盒子:阀体外盒采用ABS材质,紧固耐用,方便拆装;带NBR墙垫,方便暗装阀体拆装维护,保护阀体 ●二路出水:二路出水设计,手持花洒有2条水路可选择